Für den Inhalt dieser Seite ist eine neuere Version von Adobe Flash Player erforderlich.

Adobe Flash Player herunterladen

bedeutendste Industriearchitektur
des frühen 20. Jahrhunderts
nach Plänen des Architekten
Hans Hertlein


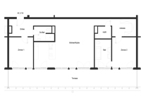
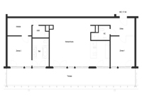
Wohneinheiten:                                     5
Wohnflächen:                58,61-129,84 m²
Kaufpreise:                 168.698-415.488 €
Bruttomietrendite:                      ca. 4,2%

Ihr möglicher
Aufwand p.M.

39 €

Ihre mögliche Rente
p.M.

968 €

jetzt Berechnen

Neubauimmobilie Berlin-Lesley-Loft

Impressionen